売建住宅参考プラン

B区画参考プラン 3,477万円(敷地面積 181.80㎡/54.88坪)

※外構・カーポート(2台分)含む

  • 間取り

    • 1階平面図

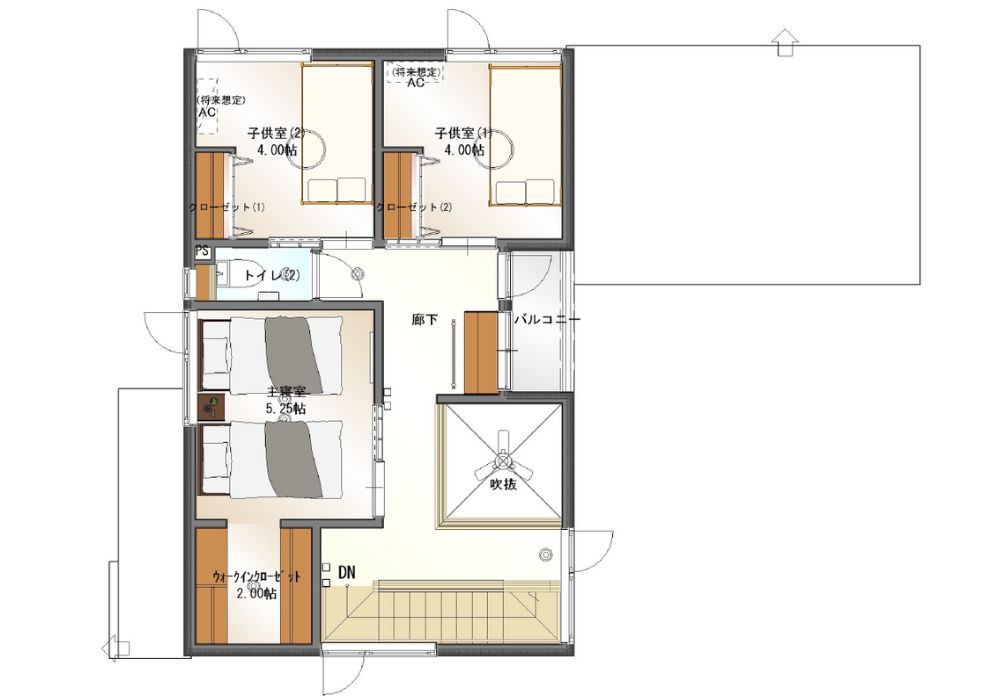
    • 2階平面図

    • 南立面図

    • 東立面図

    • 北立面図

    • 西立面図

  • 吹き抜けが開放感を生むゆとりのある家

    ▼ 設計ポイント

    ・リビング中心の吹き抜けで空間にゆとりを
    ・家族のライフスタイルに合わせて使える和の空間を1階に
    ・家族の存在を感じられる階段配置と視線の工夫
    ・洗面と脱衣室を分けたプライバシー配慮型の水まわり
    ・全室に収納を設けた柔軟な子ども部屋設計